VNDL ARHITEKTUUR I HÕLJE

Varraku ujula I "HÕLJE" ideekonkurssi 1.koht

  • Autor
    Susannah Kaul I Cristin Marii Titma I Timo Titma I Veiko Vahtrik
  • Asukoht
    Varraku tn 14c, Lasnamäe linnaosa, Tallinn, Harju maakond
  • Pindala
    7211.00m²
  • Tellija kommentaar
    ARTIKKEL TALLINNA LINNA KODULEHELT

    „Kauaoodatud Varraku ujula toob Lasnamäele uue tõmbekeskuse, tugevdab Tallinna sporditaristut ning suurendab pealinna võimekust rahvusvaheliste spordisündmuste korraldamisel. Ujula peab looma tipptasemel treeningutingimused, soodustama laste ja noorte liikumisaktiivsust ning panustama Lasnamäe avalikku ruumi – kavandi autorid on neid põhimõtteid oma töös selgelt arvesse võtnud,“ ütles Tallinna linnapea Jevgeni Ossinovski.

    Linnavara abilinnapea Margot Roose sõnul on Lasnamäe ujula arhitektuurivõistluse tulemus ehe näide sellest, kuidas hästi kavandatud avalik hoone saab teenida mitut eesmärki korraga. „Kavandatav ujulakompleks võimaldab pakkuda kõrgetasemelisi treeninguvõimalusi, toetada inimeste liikumisharjumusi ja teenida kohaliku kogukonna vajadusi. Hoone on kavandatud nii, et see loob sidusust ümbritseva linnaruumiga ühendades Tondiraba pargi, jäähalli ja elamupiirkonnad ühtseks toimivaks keskkonnaks. Linna arendamisel on meie eesmärk luua hooneid, mis on kestlikud, multifunktsionaalsed ja inimeste teenistuses,“ sõnas Roose.

    Arhitektuurivõistlusel otsiti Lasnamäe ujulale terviklikku ruumilist lahendust, mis seoks ujulahoone ja selle ümbritseva ala ühtseks ja toimivaks keskkonnaks.

    Žürii tööd juhtinud Lasnamäe linnaosa vanem Julianna Jurtšenko selgitas, et võidutöö kavand paistis silma omapärase ja loova arhitektuurse lahendusega, mis mõjub uuenduslikult, loob ujulale tugeva identiteedi ning selle juures sobitub ideaalselt Tondiraba pargi ja Jäähalli vahele. „Loodava ujulahoone ruumiplaan on väga hästi lahendatud, praktiline ja toetab sujuvat kasutusmugavust. Olümpiamõõtmetes basseini ning teiste hoones toimetavate tugiteenuste vahel on logistiline side. Samuti on väliala lahendus lihtne ja puhas, sidudes hoone korrektselt Jäähalli ümbrusega.“

IDEE JA INSPIRATSIOON

Ideekavandi loomisel on ennekõike peetud silmas, et hoone ja seda ümbritsev avalik ruum oleks publikule, sportlasele ning kõikidele külastajatele või juhuslikule möödujale mugavalt kasutatav. Uue ujula arhitektuur peegeldab piirkonnale omast materjalikäsitlust, kuid on selgelt eristuva vormikeelega, mis teeb sellest äratuntava maamärgi ja loob uue ruumilise kvaliteedi.


VÄLIRUUM
Väliruumi kujundamisel on arvestatud põhiliste liikumissuundadega ja eelnevalt planeeritud avaliku ruumi projektidega (Varraku tänava promenaad, Tondiraba park, ujula esine väljak-promenaad). Ujula peasissepääs avaneb esindusväljakule, mis moodustab ühtse hajumisruumi nii olemasoleva jäähalliga kui ka planeeritava spa-hotelliga, luues seeläbi loogilised ühendused kolme hoone vahel.
Hoonetevaheline promenaad toimib ka lipuväljakuna, rekreatsioonialana, kuhu avanevad ka planeeritud äripinnad ja kohvik ning sinna on võimalik suurvõistluste korral paigaldada ajutised telgid. Kohalike spordikangelaste saavutusi tähistavad skulptuurid, mis rajatakse näiteks protsendikunsti meetme raames, paigutatakse hooneesisele väljakule. Ujula teine sissepääs avaneb Varraku tänava promenaadile ning on sarnaselt peapääsuga varjestatud konsoolse hooneosaga, mille alla paigutuvad jalgarattaparklad. Hoone esimese korruse fassaad on esindusväljaku ja promenaadi poole avatud, tekitades seeläbi aktiivse ning inimmõõtmelise tänavaruumi. Jalakäijate ja jalgratturite liikumisteed on sirgjoonelised, üksteisest eraldatud ning ilma ka kestusteta. Põhilised kergliikurite ja jalakäijate suunad on piki Varraku tänava äärset promenaadi, kontaktala põhjapiiril mööda olemasolevat kergliiklusteed ja ujula ning jäähalli vahelisel väljakul. Autoliiklus ja teenindav transport on lahendatud võimalikult kompaktselt. Parkimine lahendatakse järgmises etapis rajatava parkimismajaga. Ujulat teenindavatel sõidukitel on võimalik peatuda hoone põhjaküljel paiknevas majandushoovis, kuhu on koondatud jäätmekäitlus, kauba transport ning tehnoseadmete hooldus. Ujula ja jäähalli vaheline promenaad-väljak on lahendatud jagatud ruumi põhimõttel, kus teenindaval transpordil ja operatiivsõidukitel on erandkorras võimalik liikuda. Hoone kontaktalasse on kavandatud uut madal- ja kõrghaljastust kasutades meie kliimale omaseid liigikooslusi. Varraku tänava poolse hoone fassaadi äärde istutatakse pihlaka alle, mis varjestab ujula aknaid otsese päikesevalguse eest. Ujula ja jäähalli vahelisele väljakule on kavandatud mitmekülgseid ja liigirohkeid kooslusi, kus on kasutatud erinevaid kõrrelisi, madalakasvulisi põõsaid ja linnakeskkonnas vastupidavat kõrghaljastust. Liigirikas linnahaljastus loob soodsad tingimused lindudele, tolmendajatele jt. putukatele. Väljaku ja promenaadi muru aladel on kasutatud kärjega tugevdatud pinnast, et tagada hooldus ning haljastuse vastupidavus.


ARHITEKTUUR
Hoone välisfassaadil on kaks peamist materjali: klaas ja betoon. Betoonile lisab mängulisust monteeritavate paneelide varieeruv kuju ja muutuv kaugus seinast. Fassaadil on kasutatud lainetava koorikuna betoonpaneele, mille peamine idee on inspireeritud vee näilikust kergusest. Paneelid on õhukesed ja pealtnäha kerged, kuid need on valmistatud betoonist, mis on teadupärast suure kaaluga materjal. Sarnane paradoks kehtib ka vee puhul.
Betoonist lainetav koorik on jätkuva rütmiga – iga laine osa representeerib ujumisel kindlat liigutuse osa. „Haare – tõmme – tõuge“ on võetud aluseks just lainetava rütmilisuse eksponeerimiseks. Fassaadil olevad aknaavad murravad lainet ning loovad päevavalgusele ligipääsu. Klaasitud avad on justkui hoonele kaugusest lähenevatele külastajatele märkamatud, sest just eelmainitud murtud lained peidavad need ning loovad näilikult ühtse fassaadi. 

Tulemuseks on jätkusuutlik lahendus, mille tagab hoone eriliselt pikk elukaar ja minimaalset hooldust vajav disain. Betoonfassaad peegeldab piirkonnale omast materjalikäsitlust ja loob ühtse ilme olemasoleva jäähalliga. Projekteeritav hoone on eelkõige igapäevasteks treeninguteks ning rahvusvaheliste võistluste korraldamiseks mõeldud ujulakompleks, millesse on kavandatud kõik lähteülesandesse kirja pandud funktsioonid. Kõige olulisemateks osadeks antud projektis on 50 m ja 25 m basseinid ning eraldiseisvad algõpetuse basseinid. Kogu hoone on kavandatud silmas pidades rahvusvaheliste suurvõistluste korraldamise logistikat. Ujula peasissepääs avaneb uuele väljakule koos olemasoleva jäähalli ja planeeritava spa-hotelli peauksega. 

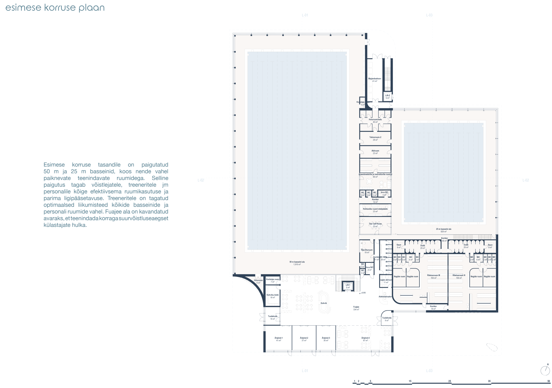
Fuajee on piisavalt avar, et teenindada korraga suurvõistluseaegset külastajate hulka. Uue väljaku ja Varraku promenaadi poole avanevad äripinnad ning kohvik moodustavad fuajeega tervikliku avaliku ruumi. Peasissepääsust liiguvad külastajad riietusruumidesse ja sealt basseini. Esimese korruse tasandile on paigutatud 50 m ja 25 m basseinid, koos nende vahel paiknevate teenindavate ruumidega. Selline paigutus tagab võistlejatele, treeneritele jm personalile kõige efektiivsema ruumikasutuse. Treeneritele on tagatud optimaalsed liikumisteed kõikide basseinide ja personali ruumide vahel. Võistluste ajal liiguvad pealtvaatajad fuajeest mööda treppi teisele korrusele, kus paikneb olümpiamõõtmetes basseini 520 inimesele mõeldud tribüün. Vajadusel on seda on võimalik laiendada veel 200 ajutise koha võrra, mis muudavad ujula täisväärtuslikuks ja ainulaadseks Eestis.

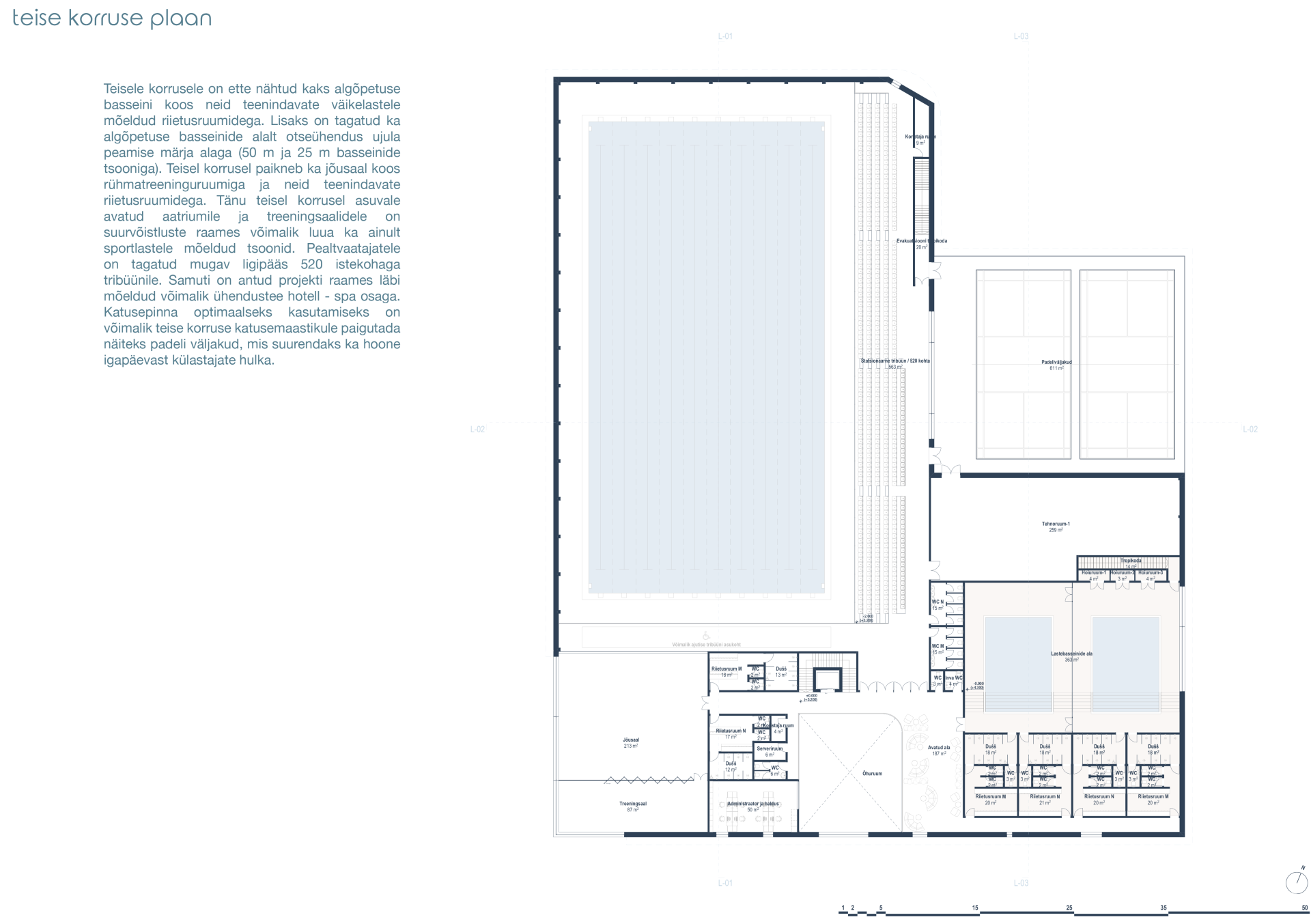
 Suurvõistluste ajal on võimalik ka põhjapoolset evakuatsioonitrepikoda kasutada sissepääsuks. Algõpetuse basseinid koos eraldi väikelaste (ja nende saatjate) riietusruumidega on viidud teisele korrusele, kus neil on mugav otseühendus planeeritava spa-hotelliga. Lisaks on tagatud ka algõpetuse basseinide alalt otseühendus ujula peamise märja alaga (50 m ja 25 m basseinide tsooniga). Teisel korrusel paikneb ka jõusaal koos rühmatreeninguruumiga ja neid teenindavate riietusruumidega.

 Tänu teisel korrusel asuvale avatud aatriumile ja treeningsaalidele on suurvõistluste raames võimalik luua ka ainult sportlastele mõeldud tsoonid. Teise korruse katusemaastikule on võimalik paigutada näiteks padeli väljakud. Maa-alusele korrusele on paigutatud kõik ujulakompleksi toimimiseks vajalikud tehnilised ruumid, sealhulgas kemikaali-, generaatori- ja kilbiruumid. Lisaks asuvad seal suured seadmeruumid basseinitehnika mahutamiseks. Korrusele pääs toimub kahe liftiga ja ühe trepikojaga.
Esimese korruse riietusruumidesse on kavandatud ka teine funktsioon – varjend. Riietusruumid on ilma akendeta ja tugevdatud seina- ning laekonstruktsioonidega. Varjendist on kaks hajutatud väljapääsu. Järgneva 2026. aasta algusest kehtima hakkava Hädaolukorra seaduse kohaselt on kõigil üle 1200 m2 suurustel avalikel hoonetel varjendi rajamise kohustus. Sõjaline oht enamasti ette teada, tänu millele saab valitsus anda inimestele korralduse valmistuda varjumiseks. Sellise stsenaariumi korral on aega 72 h, mille jooksul tuleb varjendiruum kõrvalistest objektidest, antud projekti puhul kappidest, tühjaks teha ning muuta inimestele kõlbulikuks. Varustada mõningase mööbliga, et eakatel ja erivajadustega inimestel oleks võimalik puhata ning varuda piisavalt joogikõlbuliku vett.


SISEARHITEKTUURNE KONTSEPTSIOON
Sisekujunduses on hoitud sooja, hubast ja puidust joont vastukaaluks välisele betoonkoorikule. Puit kui põhielement loob rahustava atmosfääri. Puidust konstruktiivsed elemendid jäetakse nähtavale ja töödeldakse niiskuskindla puidukaitsevahendiga. Värvipalett koosneb soojadest, maalähedastest toonidest.

Valguslahendused on kombineeritud loomuliku valgusest ja tehisvalgusest. Loomulik valgus pääseb ruumi läbi hoone idaküljel asuva klaasfassaadi, valgustades ruumi maksimaalselt loomuliku päevavalgusega, kuid seejuures mitte otsese päikesevalgusega. Eelkirjeldatud lahendus muudab olümpiabasseini valgusküllaseks, kuid väldib pimestavate päikesekiirte jõudmist ujujateni. Tehisvalgusena on kasutuses nii otsesed valgusallikad kui ka kaudsed valgusallikad, muutes ruumi funktsionaalseks nii igapäevaste treeningute ajal kui ka erilahendusi nõudvate võistluste ajal.
Kõik basseiniruumis kasutatavad materjalid on veekindlad või töödeldud vastavate kihtidega, vältimaks detailide korrodeerumist ning varajast riknemist. Põrandal on kasutatud tugeva libisemiskindlusega põrandaplaate, muutes liikumise ohutuks ning säilitades lihtsa puhastatavuse. Vältimaks niiskes basseinikeskkonnas kondensaadi tekkimist, seatakse õhutemperatuur kõrgemaks kui basseini veetemperatuur. Tõhusate meetmete valik on kombineeritud arhitektuursete elementidega selliselt, et sisekliima ja kasutajamugavus vastaks kõikidele nõuetele ning hoone oleks nii seest kui väljast silmailu pakkuv. Akustilise mugavuse ning parema töökeskkonna tagamiseks on kasutatud nii struktuurseid paneele kui ja ribistust basseiniruumiäärsel seintel, murdmaks suurtelt kõvadelt pindadelt peegelduvat heli ning vähendades seeläbi järelkõlakestvust. Ujula projekteerimisel on erilist tähelepanu pööratud kaasavale disainile ja ligipääsetavusele. 50 ja 25 m basseinid ning neid teenindavad ruumid asuvad maapinna tasandil ja on ligipääsetavad ilma astmeta. Teisel korruselele saab liikuda invanõuetele vastava liftiga. Kõik uksed lahendatakse ilma lävepakkudeta. Nii esimesel kui ka teisel korrusel paiknevad inva tualettruumid.


KONSTRUKTSIOON
Ujulakompleksi peamiseks kandvaks elementideks on võrgustiku moodustav puitkonstruktsioon. Postide, talade ning kandvate seinte süsteem tagab efektiivse toimivuse kõikidel korrustel. Kuna basseiniruumides ei ole suurte gabariitide tõttu võimalik poste paigutada ning tekkivad silded on suured, lahendatakse seal katuslagi liimpuit-fermide abil. Fassaadi lainelised betoonpaneelid kinnitatatakse terasdetailidega kandvate puitpostide külge. Lainelised betoonpaneelid on valmistatud ühte ja sama vormi kasutades. Soojustusena kasutatakse sandwichpaneele, mis on mõlemalt poolt varjatud. Konstruktsioonide valikul on lähtutud põhimõttest, et igat materjali kasutatakse sellises kohas, kus tulevad kõige paremini esile selle parimad omadused. Näiteks puitfermid, mis on kaitstud sisekeskkonnas pika elueaga, toovad interjööri hubasust ja sobivad hästi suurte avade sildamiseks.
Betooni eelised on kõige paremini ära kasutatud kandvate siseseinte ja vahelagede konstruktsioonides, kus need tagavad hea survetugevuse ja tulekindluse.


ENERGIATÕHUSUS
Projektlahenduse puhul on energiatõhusust tõstetud peamiselt läbi kompaktsuse ning tarkade tehnosüsteemide. Kuna ujulakeskkond on põhjamaistes kliimatingimustes üks keerukamaid, ning sise- ja välistingimuste vahelised temperatuuride ning õhuniiskuse erinevused on suured, on energiatõhusate lahenduste rakendamine hädavajalik hoone pikaealisuse seisukohast. Erilist tähelepanu on pööratud tehnosüsteemide paigutusele – kõik basseinitehnika seadmed, sealhulgas filtrid, soojusvahetid ja pumbad, asuvad maa-alusel korrusel vahetult basseinide läheduses. Selline lahendus aitab vähendada soojuskadusid torustikes ning parandab süsteemide tööefektiivsust. Kavandatud süsteemid võimaldavad maksimaalset kontrolli sisekliima üle, vähendades samal ajal energia- ja hoolduskulusid. Hoone lamekatus on maksimaalselt ära kasutatud ja sinna on paigaldatud kokku ligikaud 4000 m2 PV-paneele, mis katavad enamiku hoone elektritarbimisest süsinikuvaba energiaga. Lisaks kasutatakse lamekatuselt sisemiste äravooludega kokku kogutud vihmavett tualettpottides jm sobilikus sanitaartehnikas.

TELLITUD: ARHITEKTUUR